电脑桌面
添加毕设投稿发表到电脑桌面
安装后可以在桌面快捷访问

24年WP本科 广府文化艺术体验中心建筑设计重14.1%-约8797字符.docx原创

24年WP本科 广府文化艺术体验中心建筑设计重14.1%-约8797字符.docx_第1页
1/29
24年WP本科 广府文化艺术体验中心建筑设计重14.1%-约8797字符.docx_第2页
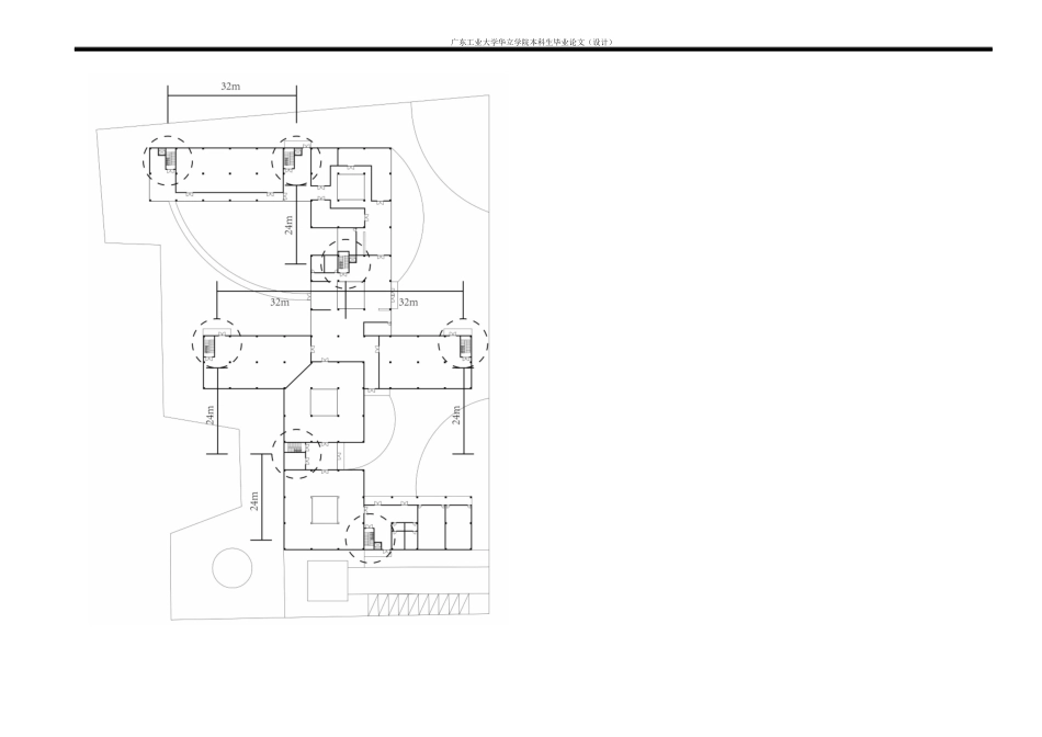
2/29
24年WP本科 广府文化艺术体验中心建筑设计重14.1%-约8797字符.docx_第3页
3/29
24年WP本科 广府文化艺术体验中心建筑设计重14.1%-约8797字符.docx_第4页
4/29
24年WP本科 广府文化艺术体验中心建筑设计重14.1%-约8797字符.docx_第5页
5/29
24年WP本科 广府文化艺术体验中心建筑设计重14.1%-约8797字符.docx_第6页
6/29
24年WP本科 广府文化艺术体验中心建筑设计重14.1%-约8797字符.docx_第7页
7/29
24年WP本科 广府文化艺术体验中心建筑设计重14.1%-约8797字符.docx_第8页
8/29
24年WP本科 广府文化艺术体验中心建筑设计重14.1%-约8797字符.docx_第9页
9/29
24年WP本科 广府文化艺术体验中心建筑设计重14.1%-约8797字符.docx_第10页
10/29
广东工业大学华立学院本科生毕业论文(设计)摘 要伴随着城镇化进程的加快,传统村落的劳动力纷纷向城市转移,突如其来的村落空心化带来人口空心化、建筑空心化、产业空心化等问题,阻碍了城乡的一体化进程,传统村落面临着威胁。如何活化这些宝贵的历史文化资源,重新激活传统村落的生命力,成了社会共同关注的话题。国家乡村振兴战略的提出,为乡村空心化问题的治理,创造了条件,以广府文化与岭南文化为基础的文化体验中心,不仅承担了这一使命,还宣传普及了广府文化,带来一定的旅游业资源,同时也给城镇留守的老人小孩留出慰籍精神的文化空间。本文通过对广府文化艺术体验...

1、当您付费下载文档后,您只拥有了使用权限,并不意味着购买了版权,文档只能用于自身使用,不得用于其他商业用途(如 [转卖]进行直接盈利或[编辑后售卖]进行间接盈利)。
2、本站所有内容均由合作方或网友上传,本站不对文档的完整性、权威性及其观点立场正确性做任何保证或承诺!文档内容仅供研究参考,付费前请自行鉴别。
3、如文档内容存在违规,或者侵犯商业秘密、侵犯著作权等,请点击“违规举报”。

碎片内容

24年WP本科 广府文化艺术体验中心建筑设计重14.1%-约8797字符.docx

发表评论取消回复

  
a.aiyt.cc+ 关注
机构认证
内容提供者

长篇生成器

确认删除?
qq
  • 联系点击这里给我发消息
搜索教程
联系客服
  • 联系客服
回到顶部