电脑桌面
添加毕设投稿发表到电脑桌面
安装后可以在桌面快捷访问

25年CH土木工程-甘肃省兰州市七里河区吴家园小学教学楼设计图纸附件终版.pdf

25年CH土木工程-甘肃省兰州市七里河区吴家园小学教学楼设计图纸附件终版.pdf_第1页
1/21
25年CH土木工程-甘肃省兰州市七里河区吴家园小学教学楼设计图纸附件终版.pdf_第2页
2/21
25年CH土木工程-甘肃省兰州市七里河区吴家园小学教学楼设计图纸附件终版.pdf_第3页
3/21
25年CH土木工程-甘肃省兰州市七里河区吴家园小学教学楼设计图纸附件终版.pdf_第4页
4/21
25年CH土木工程-甘肃省兰州市七里河区吴家园小学教学楼设计图纸附件终版.pdf_第5页
5/21
25年CH土木工程-甘肃省兰州市七里河区吴家园小学教学楼设计图纸附件终版.pdf_第6页
6/21
25年CH土木工程-甘肃省兰州市七里河区吴家园小学教学楼设计图纸附件终版.pdf_第7页
7/21
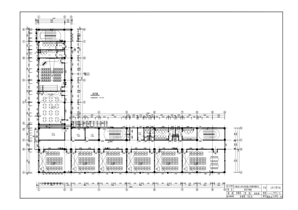
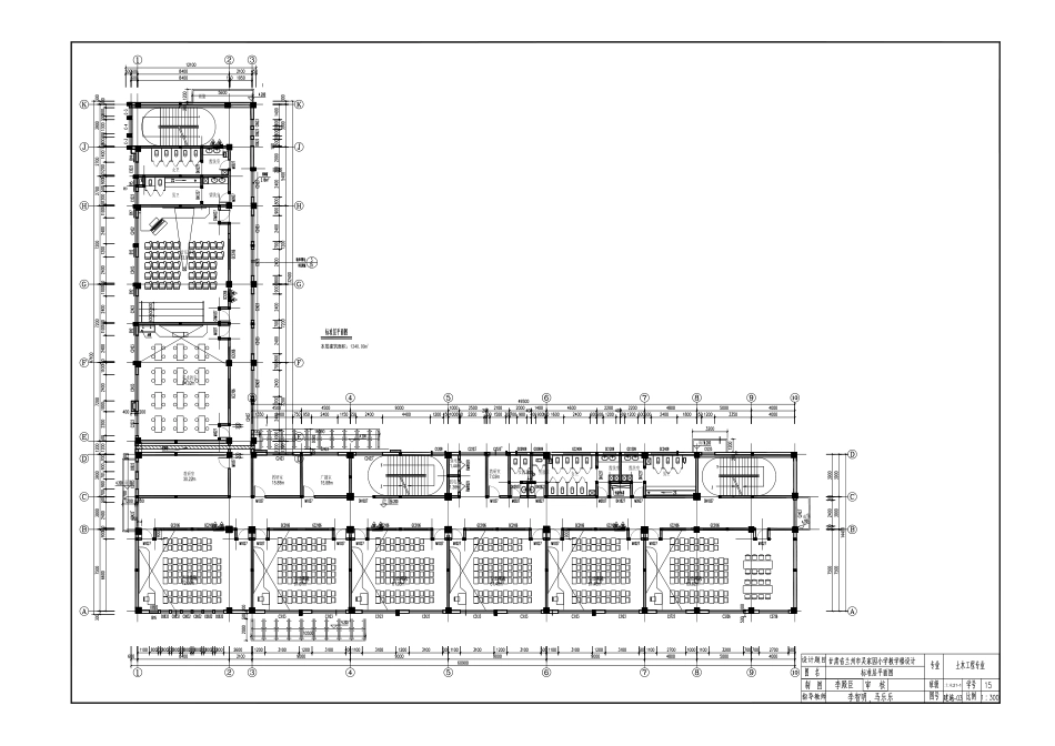
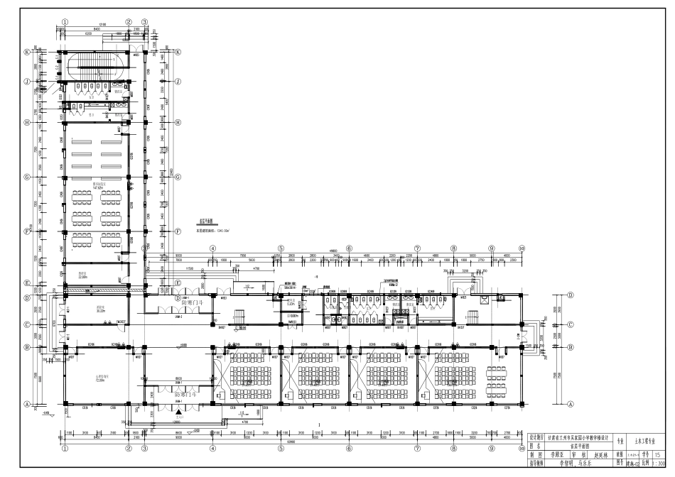
甘肃省兰州市七里河区吴家园小学教学楼设计图纸目录序号图纸名称图号1建筑设计总说明建施012首层平面图建施023标准层平面图建施034顶层平面图建施045屋顶平面图建施056正立面图建施067右立面图建施0781-1剖面图建施089结构设计总说明图结施0110一层梁配筋布置图结施0211标准层梁配筋布置图结施0312五层梁配筋图结施0413一到四层板配筋布置图结施0515五层板配筋布置图结施0616一层柱配筋布置图结施0717标准层柱配筋布置图结施0818五层柱配筋布置图结施0919楼梯剖面图及楼梯平面图结施1020基础平面布置图结施1121基础详图结施12土木21-1建筑设计总说明防寒门斗防寒门斗走廊...

1、当您付费下载文档后,您只拥有了使用权限,并不意味着购买了版权,文档只能用于自身使用,不得用于其他商业用途(如 [转卖]进行直接盈利或[编辑后售卖]进行间接盈利)。
2、本站所有内容均由合作方或网友上传,本站不对文档的完整性、权威性及其观点立场正确性做任何保证或承诺!文档内容仅供研究参考,付费前请自行鉴别。
3、如文档内容存在违规,或者侵犯商业秘密、侵犯著作权等,请点击“违规举报”。

碎片内容

25年CH土木工程-甘肃省兰州市七里河区吴家园小学教学楼设计图纸附件终版.pdf

您可能关注的文档

发表评论取消回复

  
CH+ 关注
实名认证
内容提供者

该用户很懒,什么也没介绍

确认删除?
qq
  • 联系点击这里给我发消息
搜索教程
联系客服
  • 联系客服
回到顶部