电脑桌面
添加毕设投稿发表到电脑桌面
安装后可以在桌面快捷访问

25年CH土木工程-兰州市红古区第二十四中学实验楼设计-图纸附件终版.pdf

25年CH土木工程-兰州市红古区第二十四中学实验楼设计-图纸附件终版.pdf_第1页
1/19
25年CH土木工程-兰州市红古区第二十四中学实验楼设计-图纸附件终版.pdf_第2页
2/19
25年CH土木工程-兰州市红古区第二十四中学实验楼设计-图纸附件终版.pdf_第3页
3/19
25年CH土木工程-兰州市红古区第二十四中学实验楼设计-图纸附件终版.pdf_第4页
4/19
25年CH土木工程-兰州市红古区第二十四中学实验楼设计-图纸附件终版.pdf_第5页
5/19
25年CH土木工程-兰州市红古区第二十四中学实验楼设计-图纸附件终版.pdf_第6页
6/19
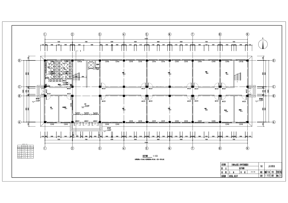
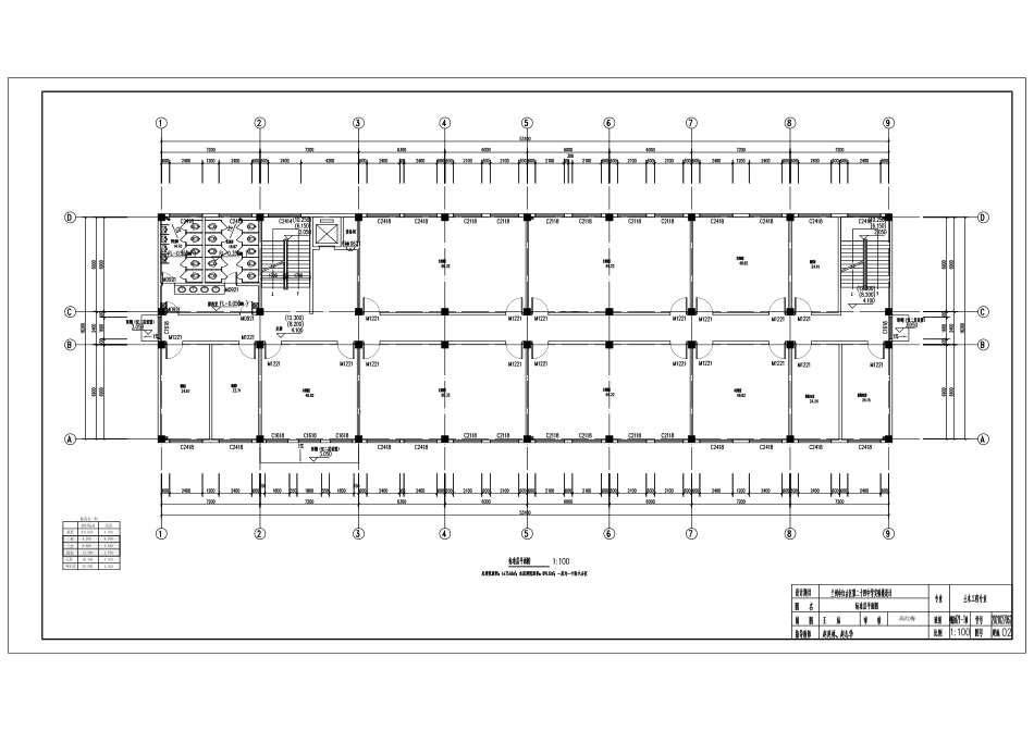
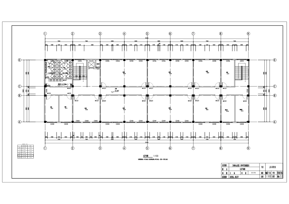
兰州市红古区第二十四中学实验楼设计图纸目录序号图纸名称图号1首层平面图建施 012标准层平面图建施 023五层平面图建施 034屋顶层平面图建施 045正立面图建施 056背立面图建施 067左侧立面图、右侧立面图建施 0781-1剖面图建施 089楼梯详图建施 0910基础平面布置图结施 0111基础详图结施 0212基础顶~20.500m柱平法施工图结施 03134.100m~12.300m梁平法施工图结施 041416.400m梁平法施工图结施 051520.500m梁平法施工图结施 06164.100m~16.400板平法施工图结施 071720.500m板平法施工图结施 0818楼梯配筋图结施 09高红梅高红梅高红梅高红梅高红梅高红梅...

1、当您付费下载文档后,您只拥有了使用权限,并不意味着购买了版权,文档只能用于自身使用,不得用于其他商业用途(如 [转卖]进行直接盈利或[编辑后售卖]进行间接盈利)。
2、本站所有内容均由合作方或网友上传,本站不对文档的完整性、权威性及其观点立场正确性做任何保证或承诺!文档内容仅供研究参考,付费前请自行鉴别。
3、如文档内容存在违规,或者侵犯商业秘密、侵犯著作权等,请点击“违规举报”。

碎片内容

25年CH土木工程-兰州市红古区第二十四中学实验楼设计-图纸附件终版.pdf

您可能关注的文档

发表评论取消回复

  
CH+ 关注
实名认证
内容提供者

该用户很懒,什么也没介绍

确认删除?
qq
  • 联系点击这里给我发消息
搜索教程
联系客服
  • 联系客服
回到顶部