电脑桌面
添加毕设投稿发表到电脑桌面
安装后可以在桌面快捷访问

25年CH土木工程 河南省濮阳市朝阳路小学综合楼设计图纸附件终版.pdf

25年CH土木工程 河南省濮阳市朝阳路小学综合楼设计图纸附件终版.pdf_第1页
1/16
25年CH土木工程 河南省濮阳市朝阳路小学综合楼设计图纸附件终版.pdf_第2页
2/16
25年CH土木工程 河南省濮阳市朝阳路小学综合楼设计图纸附件终版.pdf_第3页
3/16
25年CH土木工程 河南省濮阳市朝阳路小学综合楼设计图纸附件终版.pdf_第4页
4/16
25年CH土木工程 河南省濮阳市朝阳路小学综合楼设计图纸附件终版.pdf_第5页
5/16
25年CH土木工程 河南省濮阳市朝阳路小学综合楼设计图纸附件终版.pdf_第6页
6/16
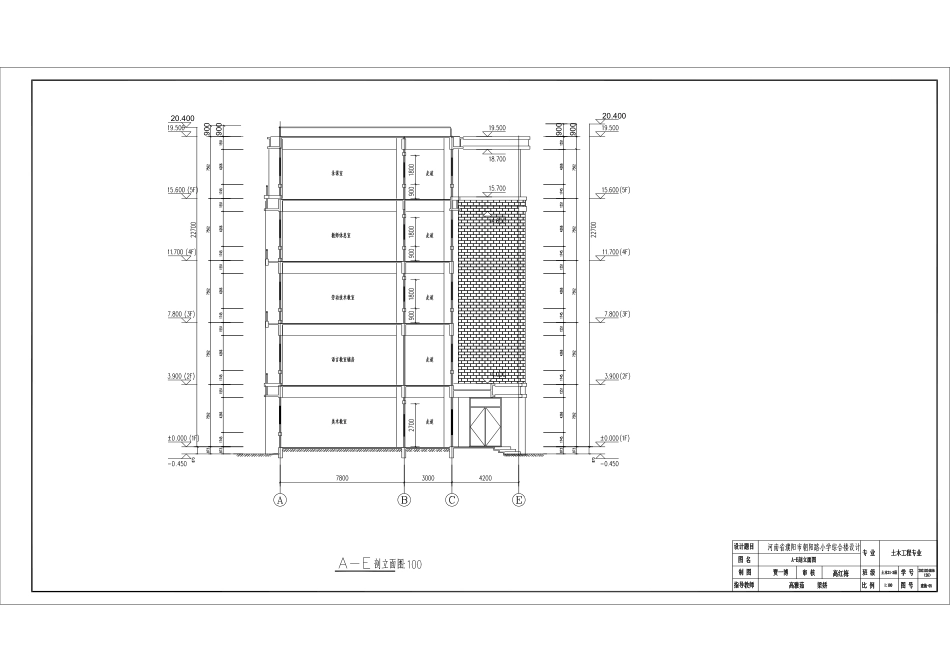
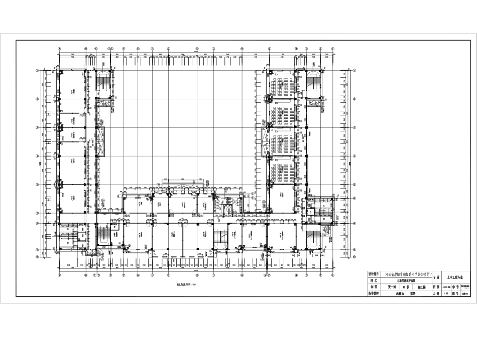
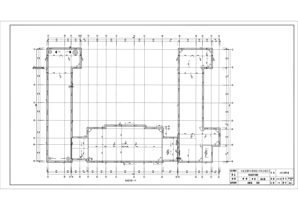
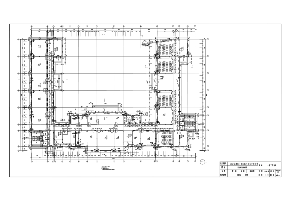
河南省濮阳市朝阳路小学综合楼设计图纸目录序号图纸名称图号1建筑总说明建施 012首层建筑平面图建施 023标准层建筑平面图建施 034顶层建筑平面图建施 045A-E剖面图建施 056正立面图建施067建施楼梯平面图/楼梯刨面图078结施标准板配筋施工图0191结施顶层板配筋施工图0201结施1-5层柱平法施施工图031首层梁配筋施工图1结施 042标准层梁配筋施工图1结施 053顶层梁配筋施工图1结施 0641结施 0楼梯配筋图75结施0独立柱基础平面图8一、设计依据.工程概况二. 屋面工程六. 设计标高三. 墙体工程四. 室内及基础防水工程五. 门窗幕墙工程七九. 无障碍设计十一.室内...

1、当您付费下载文档后,您只拥有了使用权限,并不意味着购买了版权,文档只能用于自身使用,不得用于其他商业用途(如 [转卖]进行直接盈利或[编辑后售卖]进行间接盈利)。
2、本站所有内容均由合作方或网友上传,本站不对文档的完整性、权威性及其观点立场正确性做任何保证或承诺!文档内容仅供研究参考,付费前请自行鉴别。
3、如文档内容存在违规,或者侵犯商业秘密、侵犯著作权等,请点击“违规举报”。

碎片内容

25年CH土木工程 河南省濮阳市朝阳路小学综合楼设计图纸附件终版.pdf

您可能关注的文档

发表评论取消回复

  
CH+ 关注
实名认证
内容提供者

该用户很懒,什么也没介绍

确认删除?
qq
  • 联系点击这里给我发消息
搜索教程
联系客服
  • 联系客服
回到顶部