电脑桌面
添加毕设投稿发表到电脑桌面
安装后可以在桌面快捷访问

25年CH食品质量与安全 青龙苹果风味饮料配方研制及加工车间设计-docx-附件模型.pdfVIP免费

25年CH食品质量与安全 青龙苹果风味饮料配方研制及加工车间设计-docx-附件模型.pdf_第1页
1/1
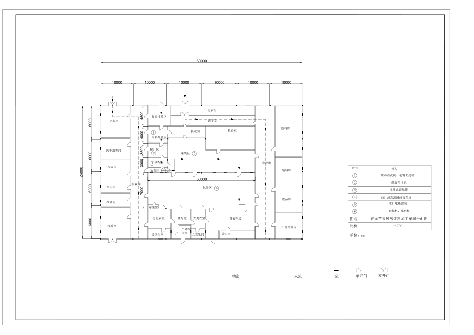
6000024000不合格品库成品库辅料库原料库检验室配电室洗衣房洗手消毒间更衣室更衣柜洗手室换衣间检查室参观廊参观廊榨汁区灌装区除尘室空调配电室男更衣室休息室男卫生间储存库房除尘室原料处理区调配区包装区维修间杀菌区6000600060006000100001000010000100001000010000临时堆放区女更衣室女卫生间窗户单开门双开门人流物流1234561序号设备23456喷淋清洗机、毛辊去皮机螺旋榨汁机搅拌式调配罐UHT 超高温瞬时灭菌机PET 瓶热灌装套标机,膜包机图名比例青龙苹果风味饮料加工车间平面图1:200单位:mm4500400035003000300007000

1、当您付费下载文档后,您只拥有了使用权限,并不意味着购买了版权,文档只能用于自身使用,不得用于其他商业用途(如 [转卖]进行直接盈利或[编辑后售卖]进行间接盈利)。
2、本站所有内容均由合作方或网友上传,本站不对文档的完整性、权威性及其观点立场正确性做任何保证或承诺!文档内容仅供研究参考,付费前请自行鉴别。
3、如文档内容存在违规,或者侵犯商业秘密、侵犯著作权等,请点击“违规举报”。

碎片内容

25年CH食品质量与安全 青龙苹果风味饮料配方研制及加工车间设计-docx-附件模型.pdf

您可能关注的文档

发表评论取消回复

  
CH+ 关注
实名认证
内容提供者

该用户很懒,什么也没介绍

确认删除?
qq
  • 联系点击这里给我发消息
搜索教程
联系客服
  • 联系客服
回到顶部