电脑桌面
添加毕设投稿发表到电脑桌面
安装后可以在桌面快捷访问

25年CH土木工程-西安市高新二中教学楼设计图纸附件终版.pdf

25年CH土木工程-西安市高新二中教学楼设计图纸附件终版.pdf_第1页
1/18
25年CH土木工程-西安市高新二中教学楼设计图纸附件终版.pdf_第2页
2/18
25年CH土木工程-西安市高新二中教学楼设计图纸附件终版.pdf_第3页
3/18
25年CH土木工程-西安市高新二中教学楼设计图纸附件终版.pdf_第4页
4/18
25年CH土木工程-西安市高新二中教学楼设计图纸附件终版.pdf_第5页
5/18
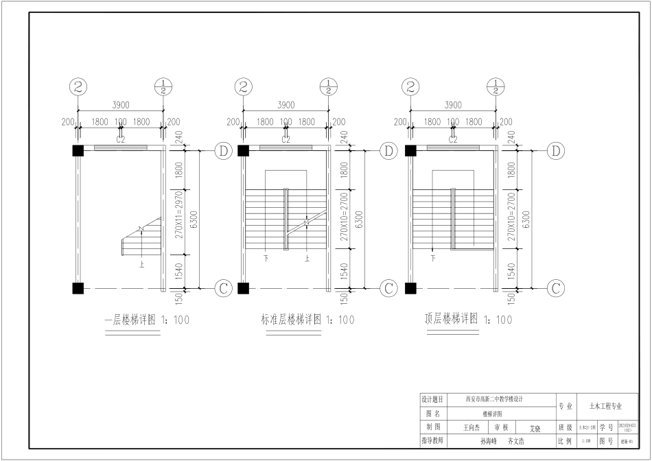
西安市高新二中教学楼设计图纸目录序号图纸名称图号1一层平面图建施 012标准层平面面图建施 023楼梯详图建施 0341-8轴立面图建施 045A-D/D-A轴立面图建施 0561-1/2-2剖面图建施 067一、二层梁配筋图结施 018三、四层梁配筋图结施 029屋顶梁配筋图结施 0310楼面板配筋图结施 0411屋顶板配筋图结施 0512标准层结构平面布置图结施 0613一榀框架图结施 0714楼梯配筋图结施 0815一层柱配筋图结施 0916标准层柱配筋图结施 1017基础平面布置图结施 11女厕男厕女厕男厕办公室研讨室复印室门厅教室教室教室教室收发室自习室教室教室教室设计题目图 名制 图指导...

1、当您付费下载文档后,您只拥有了使用权限,并不意味着购买了版权,文档只能用于自身使用,不得用于其他商业用途(如 [转卖]进行直接盈利或[编辑后售卖]进行间接盈利)。
2、本站所有内容均由合作方或网友上传,本站不对文档的完整性、权威性及其观点立场正确性做任何保证或承诺!文档内容仅供研究参考,付费前请自行鉴别。
3、如文档内容存在违规,或者侵犯商业秘密、侵犯著作权等,请点击“违规举报”。

碎片内容

25年CH土木工程-西安市高新二中教学楼设计图纸附件终版.pdf

您可能关注的文档

发表评论取消回复

  
CH+ 关注
实名认证
内容提供者

该用户很懒,什么也没介绍

确认删除?
qq
  • 联系点击这里给我发消息
搜索教程
联系客服
  • 联系客服
回到顶部