电脑桌面
添加毕设投稿发表到电脑桌面
安装后可以在桌面快捷访问

25年CH土木工程-黑龙江省海林市群众健身中心设计图纸附件终版.pdf

25年CH土木工程-黑龙江省海林市群众健身中心设计图纸附件终版.pdf_第1页
1/15
25年CH土木工程-黑龙江省海林市群众健身中心设计图纸附件终版.pdf_第2页
2/15
25年CH土木工程-黑龙江省海林市群众健身中心设计图纸附件终版.pdf_第3页
3/15
25年CH土木工程-黑龙江省海林市群众健身中心设计图纸附件终版.pdf_第4页
4/15
25年CH土木工程-黑龙江省海林市群众健身中心设计图纸附件终版.pdf_第5页
5/15
25年CH土木工程-黑龙江省海林市群众健身中心设计图纸附件终版.pdf_第6页
6/15
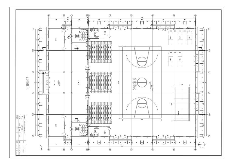
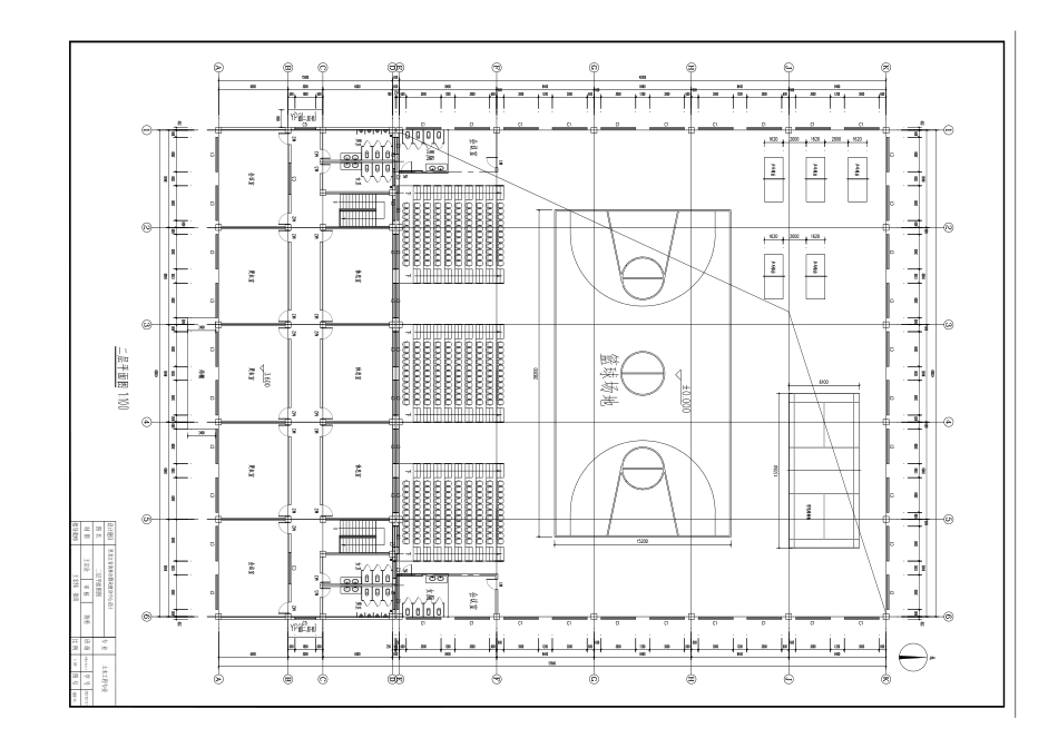
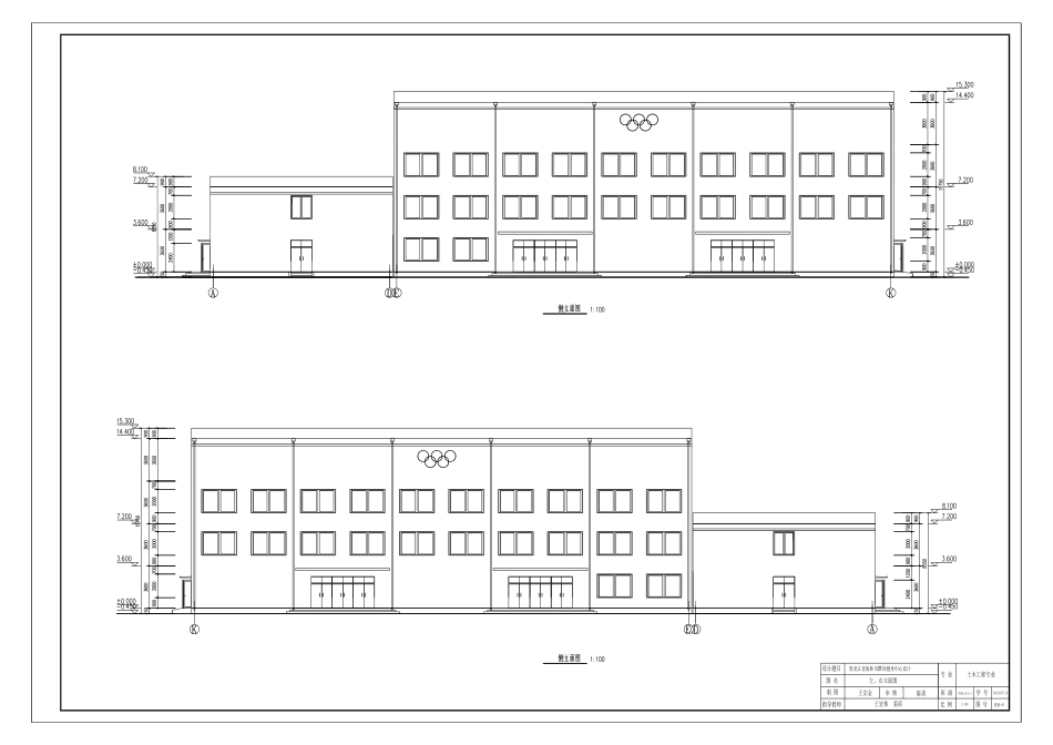
序黑龙江省海林市群众健身中心设计图纸目录号图纸名称图号1首层平面图建施 012二层平面图建施 023屋面排水平面图建施 034轴1-6正背立面图建施 045左右侧立面图建施 056刨面图建施 067基础平面布置图建施 078网架平面布置图及上弦布置图结施 019网架腹杆布置图结施 0210支座节点详图结施 0311框架结构梁平法配筋图结施 0412框架结构板配筋平面图结施 0513一层柱配筋平面图结施 0614楼梯详图结施 07设计题目图 名制 图指导教师专 业审 核土木工程专业班 级学 号图 号黑龙江省海林市群众健身中心设计王宗金中俄土木21-31:100建施-02首层平面图比 例20...

1、当您付费下载文档后,您只拥有了使用权限,并不意味着购买了版权,文档只能用于自身使用,不得用于其他商业用途(如 [转卖]进行直接盈利或[编辑后售卖]进行间接盈利)。
2、本站所有内容均由合作方或网友上传,本站不对文档的完整性、权威性及其观点立场正确性做任何保证或承诺!文档内容仅供研究参考,付费前请自行鉴别。
3、如文档内容存在违规,或者侵犯商业秘密、侵犯著作权等,请点击“违规举报”。

碎片内容

25年CH土木工程-黑龙江省海林市群众健身中心设计图纸附件终版.pdf

您可能关注的文档

发表评论取消回复

  
CH+ 关注
实名认证
内容提供者

该用户很懒,什么也没介绍

确认删除?
qq
  • 联系点击这里给我发消息
搜索教程
联系客服
  • 联系客服
回到顶部