电脑桌面
添加毕设投稿发表到电脑桌面
安装后可以在桌面快捷访问

25年WH环境设计 “光影印象”主题文创书吧设计2.0-AI15.34终稿-约7328字符.docx

25年WH环境设计 “光影印象”主题文创书吧设计2.0-AI15.34终稿-约7328字符.docx_第1页
1/19
25年WH环境设计 “光影印象”主题文创书吧设计2.0-AI15.34终稿-约7328字符.docx_第2页
2/19
25年WH环境设计 “光影印象”主题文创书吧设计2.0-AI15.34终稿-约7328字符.docx_第3页
3/19
25年WH环境设计 “光影印象”主题文创书吧设计2.0-AI15.34终稿-约7328字符.docx_第4页
4/19
25年WH环境设计 “光影印象”主题文创书吧设计2.0-AI15.34终稿-约7328字符.docx_第5页
5/19
25年WH环境设计 “光影印象”主题文创书吧设计2.0-AI15.34终稿-约7328字符.docx_第6页
6/19
25年WH环境设计 “光影印象”主题文创书吧设计2.0-AI15.34终稿-约7328字符.docx_第7页
7/19
25年WH环境设计 “光影印象”主题文创书吧设计2.0-AI15.34终稿-约7328字符.docx_第8页
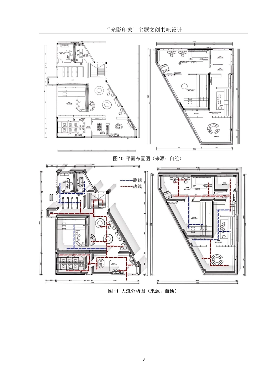
8/19
25年WH环境设计 “光影印象”主题文创书吧设计2.0-AI15.34终稿-约7328字符.docx_第9页
9/19
25年WH环境设计 “光影印象”主题文创书吧设计2.0-AI15.34终稿-约7328字符.docx_第10页
10/19
“光影印象”主题文创书吧设计目 录中、英文摘要及关键词........................................................1一、设计概况................................................................2(一) 区位分析.........................................................2(二) 现状分析.........................................................2(三) 消费人群分析.....................................................3二、设计概念................................................................3(一) 设计理念与方法........................

1、当您付费下载文档后,您只拥有了使用权限,并不意味着购买了版权,文档只能用于自身使用,不得用于其他商业用途(如 [转卖]进行直接盈利或[编辑后售卖]进行间接盈利)。
2、本站所有内容均由合作方或网友上传,本站不对文档的完整性、权威性及其观点立场正确性做任何保证或承诺!文档内容仅供研究参考,付费前请自行鉴别。
3、如文档内容存在违规,或者侵犯商业秘密、侵犯著作权等,请点击“违规举报”。

碎片内容

25年WH环境设计 “光影印象”主题文创书吧设计2.0-AI15.34终稿-约7328字符.docx

发表评论取消回复

  
25年+ 关注
实名认证
内容提供者

该用户很懒,什么也没介绍

确认删除?
qq
  • 联系点击这里给我发消息
搜索教程
联系客服
  • 联系客服
回到顶部