电脑桌面
添加毕设投稿发表到电脑桌面
安装后可以在桌面快捷访问

25年WH环境设计 “沅水柳情”城市书咖空间设计1.98-AI3.09-约7818字符.doc

25年WH环境设计 “沅水柳情”城市书咖空间设计1.98-AI3.09-约7818字符.doc_第1页
1/18
25年WH环境设计 “沅水柳情”城市书咖空间设计1.98-AI3.09-约7818字符.doc_第2页
2/18
25年WH环境设计 “沅水柳情”城市书咖空间设计1.98-AI3.09-约7818字符.doc_第3页
3/18
25年WH环境设计 “沅水柳情”城市书咖空间设计1.98-AI3.09-约7818字符.doc_第4页
4/18
25年WH环境设计 “沅水柳情”城市书咖空间设计1.98-AI3.09-约7818字符.doc_第5页
5/18
25年WH环境设计 “沅水柳情”城市书咖空间设计1.98-AI3.09-约7818字符.doc_第6页
6/18
25年WH环境设计 “沅水柳情”城市书咖空间设计1.98-AI3.09-约7818字符.doc_第7页
7/18
25年WH环境设计 “沅水柳情”城市书咖空间设计1.98-AI3.09-约7818字符.doc_第8页
8/18
25年WH环境设计 “沅水柳情”城市书咖空间设计1.98-AI3.09-约7818字符.doc_第9页
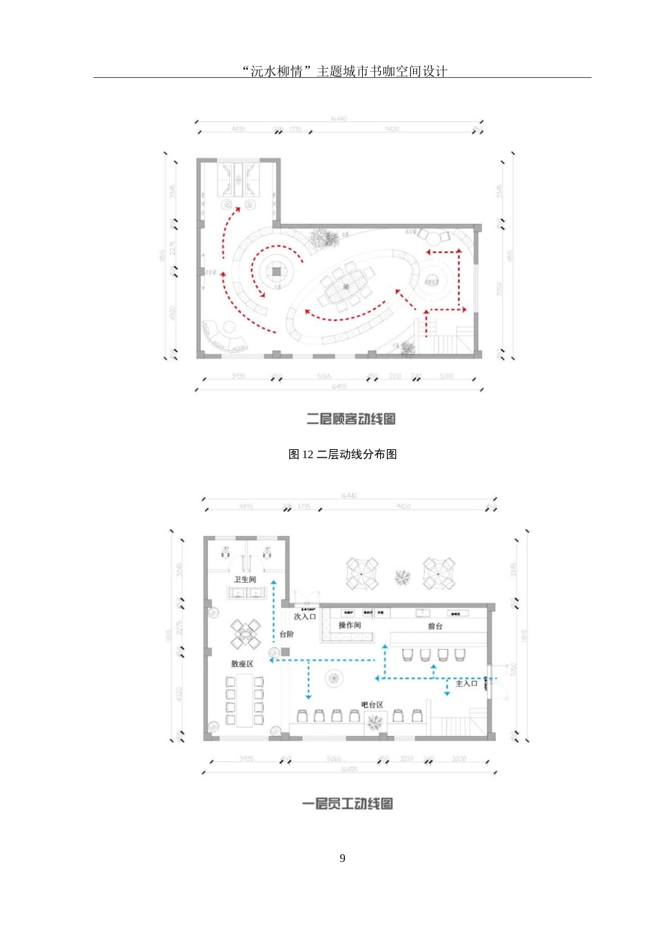
9/18
25年WH环境设计 “沅水柳情”城市书咖空间设计1.98-AI3.09-约7818字符.doc_第10页
10/18
目 录中、英文摘要及关键词.............................................................................................................1一、项目分析.............................................................................................................................3(一)关于基于“沅水柳情”城市书咖设计前期案例分析..........................................2(二)项目选址分析..........................................................................................................4二、“沅水柳情”文化元素分析.............

1、当您付费下载文档后,您只拥有了使用权限,并不意味着购买了版权,文档只能用于自身使用,不得用于其他商业用途(如 [转卖]进行直接盈利或[编辑后售卖]进行间接盈利)。
2、本站所有内容均由合作方或网友上传,本站不对文档的完整性、权威性及其观点立场正确性做任何保证或承诺!文档内容仅供研究参考,付费前请自行鉴别。
3、如文档内容存在违规,或者侵犯商业秘密、侵犯著作权等,请点击“违规举报”。

碎片内容

25年WH环境设计 “沅水柳情”城市书咖空间设计1.98-AI3.09-约7818字符.doc

您可能关注的文档

发表评论取消回复

  
25年+ 关注
实名认证
内容提供者

该用户很懒,什么也没介绍

确认删除?
qq
  • 联系点击这里给我发消息
搜索教程
联系客服
  • 联系客服
回到顶部