电脑桌面
添加毕设投稿发表到电脑桌面
安装后可以在桌面快捷访问

23年WP 邯郸市绿建集团六层办公楼框架结构设计-约171291字符.docx

23年WP 邯郸市绿建集团六层办公楼框架结构设计-约171291字符.docx_第1页
1/171
23年WP 邯郸市绿建集团六层办公楼框架结构设计-约171291字符.docx_第2页
2/171
23年WP 邯郸市绿建集团六层办公楼框架结构设计-约171291字符.docx_第3页
3/171
23年WP 邯郸市绿建集团六层办公楼框架结构设计-约171291字符.docx_第4页
4/171
23年WP 邯郸市绿建集团六层办公楼框架结构设计-约171291字符.docx_第5页
5/171
23年WP 邯郸市绿建集团六层办公楼框架结构设计-约171291字符.docx_第6页
6/171
23年WP 邯郸市绿建集团六层办公楼框架结构设计-约171291字符.docx_第7页
7/171
23年WP 邯郸市绿建集团六层办公楼框架结构设计-约171291字符.docx_第8页
8/171
23年WP 邯郸市绿建集团六层办公楼框架结构设计-约171291字符.docx_第9页
9/171
23年WP 邯郸市绿建集团六层办公楼框架结构设计-约171291字符.docx_第10页
10/171
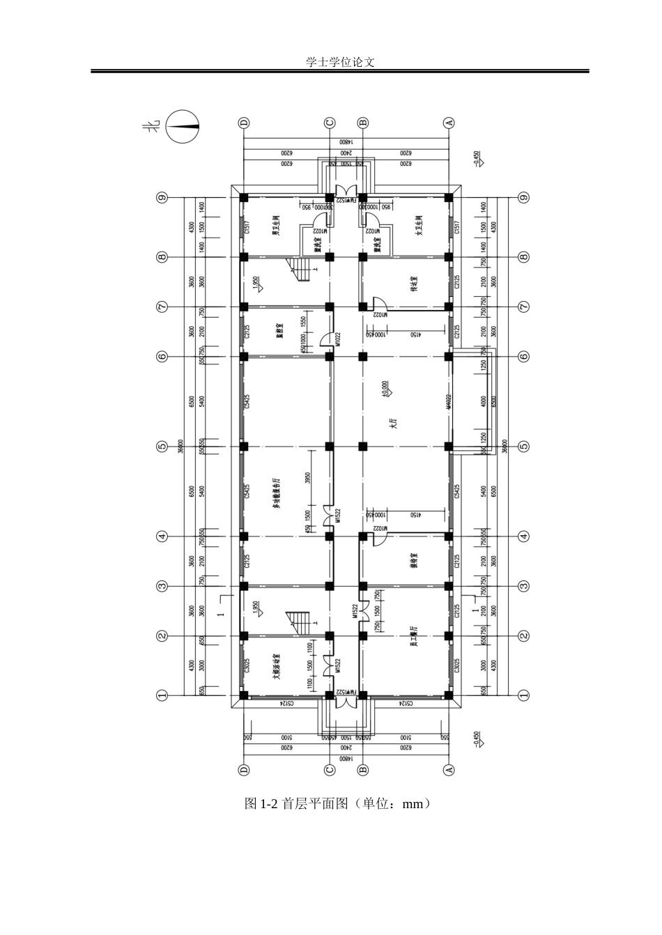
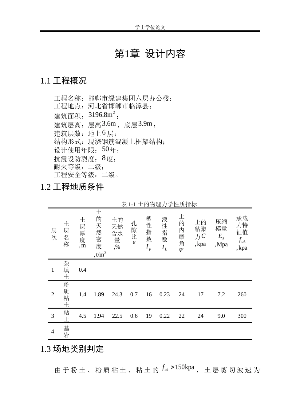
毕 业 设 计题 目: 邯郸市绿建集团六 层 办公 楼框架结构设计 院 系: 荣成学院 建筑工程系 姓 名: 齐 昊 指导教师: 马万里 系 主 任: 王宏斌 2023 年 6 月 16 日- -I学士学位论文邯郸市绿建集团六层办公楼框架结构设计摘 要本次毕业设计为邯郸市绿建集团六层办公楼框架结构设计,该建筑采用现浇混凝土框架结构。建筑总面积为,层高,底层3.9m,建筑总高度为 21.9m,屋顶不上人屋面。本设计分为建筑设计和结构设计两部分。根据邯郸市地质资料和办公楼设计要求进行建筑设计,并利用 CAD 绘制了平面图、立面图、剖面图以及使用 Revi...

1、当您付费下载文档后,您只拥有了使用权限,并不意味着购买了版权,文档只能用于自身使用,不得用于其他商业用途(如 [转卖]进行直接盈利或[编辑后售卖]进行间接盈利)。
2、本站所有内容均由合作方或网友上传,本站不对文档的完整性、权威性及其观点立场正确性做任何保证或承诺!文档内容仅供研究参考,付费前请自行鉴别。
3、如文档内容存在违规,或者侵犯商业秘密、侵犯著作权等,请点击“违规举报”。

碎片内容

23年WP 邯郸市绿建集团六层办公楼框架结构设计-约171291字符.docx

您可能关注的文档

发表评论取消回复

  
a.aiyt.cc+ 关注
机构认证
内容提供者

长篇生成器

确认删除?
qq
  • 联系点击这里给我发消息
搜索教程
联系客服
  • 联系客服
回到顶部