电脑桌面
添加毕设投稿发表到电脑桌面
安装后可以在桌面快捷访问

25年CH土木工程 河南省濮阳市朝阳路小学综合楼设计终版-约67537字符.pdf

25年CH土木工程 河南省濮阳市朝阳路小学综合楼设计终版-约67537字符.pdf_第1页
1/165
25年CH土木工程 河南省濮阳市朝阳路小学综合楼设计终版-约67537字符.pdf_第2页
2/165
25年CH土木工程 河南省濮阳市朝阳路小学综合楼设计终版-约67537字符.pdf_第3页
3/165
25年CH土木工程 河南省濮阳市朝阳路小学综合楼设计终版-约67537字符.pdf_第4页
4/165
25年CH土木工程 河南省濮阳市朝阳路小学综合楼设计终版-约67537字符.pdf_第5页
5/165
25年CH土木工程 河南省濮阳市朝阳路小学综合楼设计终版-约67537字符.pdf_第6页
6/165
25年CH土木工程 河南省濮阳市朝阳路小学综合楼设计终版-约67537字符.pdf_第7页
7/165
25年CH土木工程 河南省濮阳市朝阳路小学综合楼设计终版-约67537字符.pdf_第8页
8/165
25年CH土木工程 河南省濮阳市朝阳路小学综合楼设计终版-约67537字符.pdf_第9页
9/165
25年CH土木工程 河南省濮阳市朝阳路小学综合楼设计终版-约67537字符.pdf_第10页
10/165
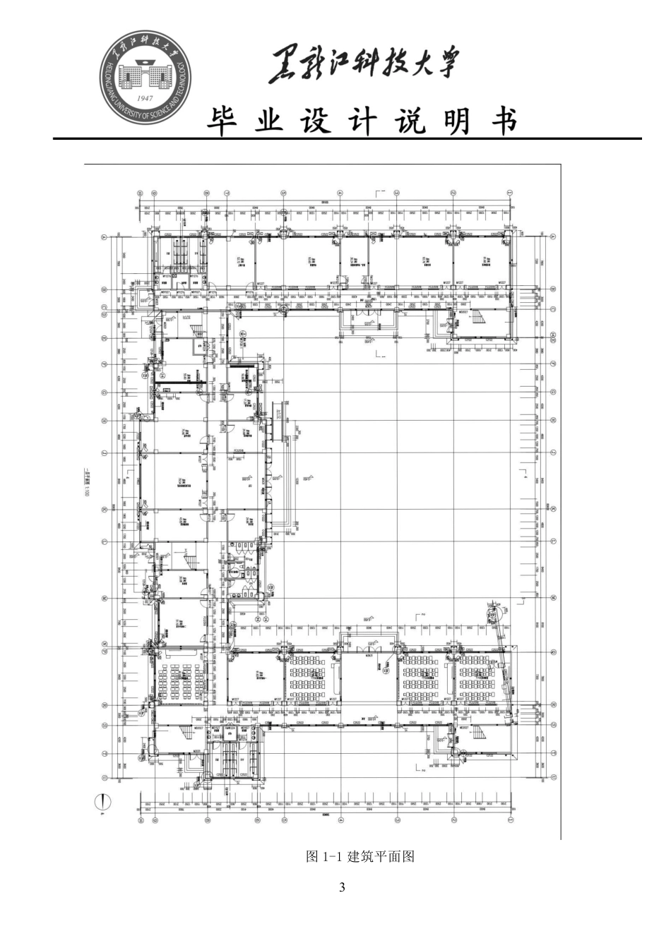
I摘要本设计为河南省濮阳市朝阳路小学综合楼设计,共五层,建筑面积为10468.31 ㎡。分为两部分,以结构设计为首要设计内容,其中还要结合建筑设计方面的内容。结构设计,由荷载计算、框架结构的受力分析和设计、楼板设计、楼梯设计和基础设计等组成。结构采用框架承重体系,抗震设防烈度为 7 度。抗震等级为乙级,考虑水平北震作用和风荷载对横向框架的影响,水平内力分析采用 D 值法。竖向荷载作用下,横向框架内力计算采用弯矩二次分配法。荷载效应组合考虑了持久设计状况和抗震设计状况,取控制截面最不利内力对框架梁、柱进行截面设计。其中框架梁、柱采用弹性...

1、当您付费下载文档后,您只拥有了使用权限,并不意味着购买了版权,文档只能用于自身使用,不得用于其他商业用途(如 [转卖]进行直接盈利或[编辑后售卖]进行间接盈利)。
2、本站所有内容均由合作方或网友上传,本站不对文档的完整性、权威性及其观点立场正确性做任何保证或承诺!文档内容仅供研究参考,付费前请自行鉴别。
3、如文档内容存在违规,或者侵犯商业秘密、侵犯著作权等,请点击“违规举报”。

碎片内容

25年CH土木工程 河南省濮阳市朝阳路小学综合楼设计终版-约67537字符.pdf

您可能关注的文档

发表评论取消回复

  
CH+ 关注
实名认证
内容提供者

该用户很懒,什么也没介绍

确认删除?
qq
  • 联系点击这里给我发消息
搜索教程
联系客服
  • 联系客服
回到顶部